まろやかなグレー
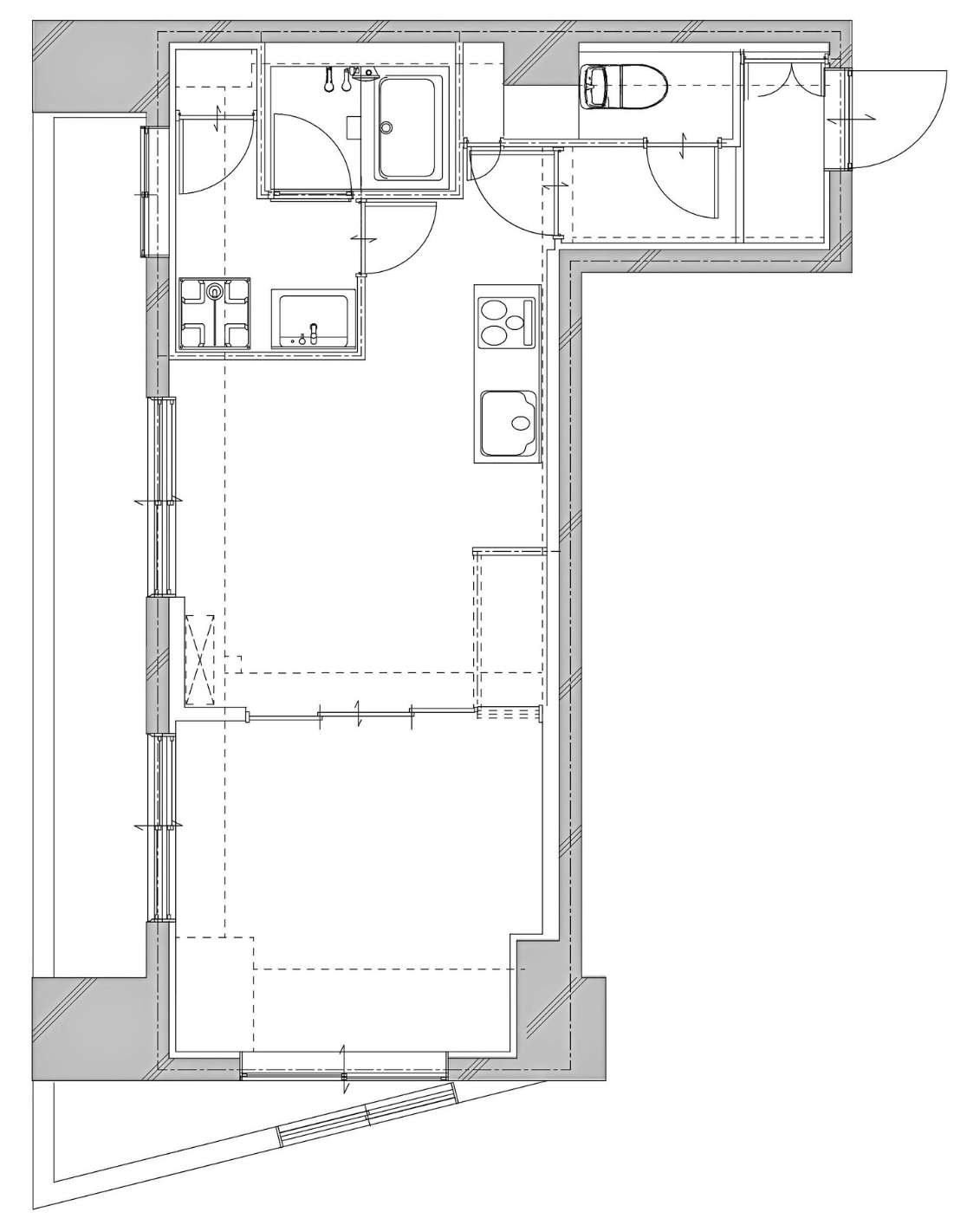
| エリア | 都心6区エリア(千代田/中央/港/新宿/渋谷/文京) |
|---|---|
| 家族構成 | 一人暮らし |
| 面積 | 36.83㎡ |
| 間取り | 1DK → 1LDK |
| テイスト | ナチュラル,シンプル,モダン |
| 特徴 | 断熱(省エネ),アール開口,ニッチ棚,二重サッシ |
まろやかなグレー
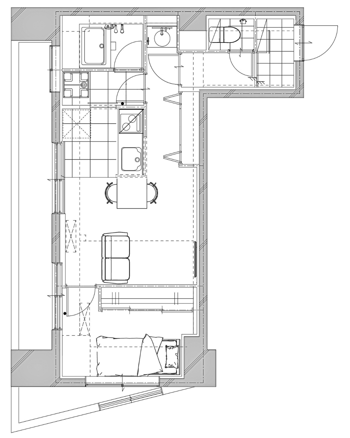
マンションのフルリノベーション事例。「リビングと寝室に区切りをつけたい」と希望されていたお施主様。ワンルームの中心に可動間仕切りという既存の間取りから、壁を設けて独立した寝室に。さらにキッチンや洗面を移設して、LDK空間を最大化。キッチン移設によって生まれた空間に収納棚とアール型ニッチの飾り棚を、寝室の壁一面にクローゼットをしつらえ、収納計画も充実。玄関土間も拡張し、可動式の靴棚を造作しました。窓には二重サッシを設置し、気密性と防音性能をUP。
デザイン面では、やわらかなグレーの織物クロスと、白木に近い淡色のドライメイプルのフローリング、そしてアールの意匠が特長的。インテリアや照明も丸みのデザインで揃え、シンプルでモダンながらもやわらかなムード。リビング入ってすぐのアール型ニッチの飾り棚は、お気に入りのフレグランスや小物を並べて、空間のフォーカルポイントに。キッチン奥のアール開口からは、ランドリースペースのクラシカルなリーフ柄クロスが覗きます。ランドリースペースは脱衣スペースを兼ねているため、ロールスクリーンで目隠し可能。浴室隣にオープンスタイルでしつらえた洗面台も、ボウルや鏡は丸みのデザインで統一しました。
照明はダウンライト中心のプランですが、ダイニングにはインテリアとしてお好みのペンダントライトを楽しめるようライティングレールを設置。ソファスペースの壁にはアートやインテリアアクセサリーが映えるブラケットライトをしつらえました。「まだどんなものを飾ろうか探している最中で。インテリアも、ここに棚を置こうとか、買ったはいいけれどやっぱり違うのが良かったかなとか、試行錯誤の最中」とお施主様。グレーとナチュラルウッドを基調とした空間は、クラシカルでもポップでも、フェミニンでもクールなものも調和しやすいキャンバスです。どうぞインテリア選びも楽しみながら、ゆっくりと自分の「好きな暮らし」を見つけていってくださいね。
























