ぐるり動線、キャットウォークと造作本棚の「大人の秘密基地」
| エリア | 都下エリア(武蔵野/三鷹近郊) |
|---|---|
| 家族構成 | 二人暮らし |
| 面積 | 71.16㎡ |
| 間取り | 3LDK → 1LDK |
| テイスト | 和風,ナチュラル |
| 特徴 | 造作本棚,小上がり畳,回遊動線,キャットウォーク, キャットドア,ヌック,二重サッシ,土間収納 |
ぐるり動線、キャットウォークと造作本棚の「大人の秘密基地」
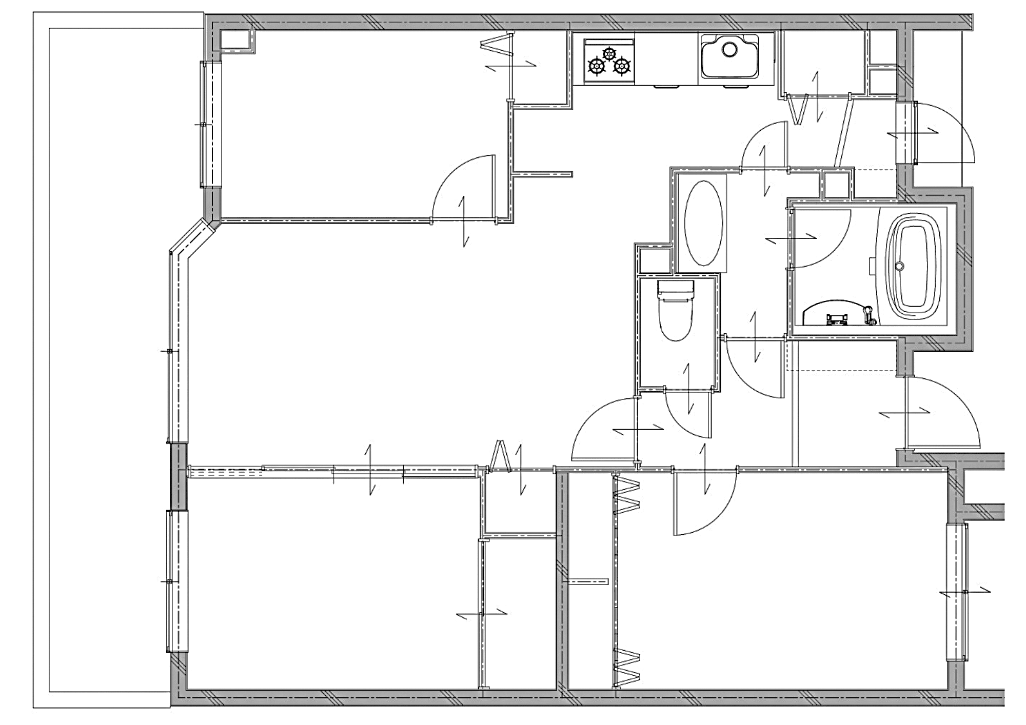
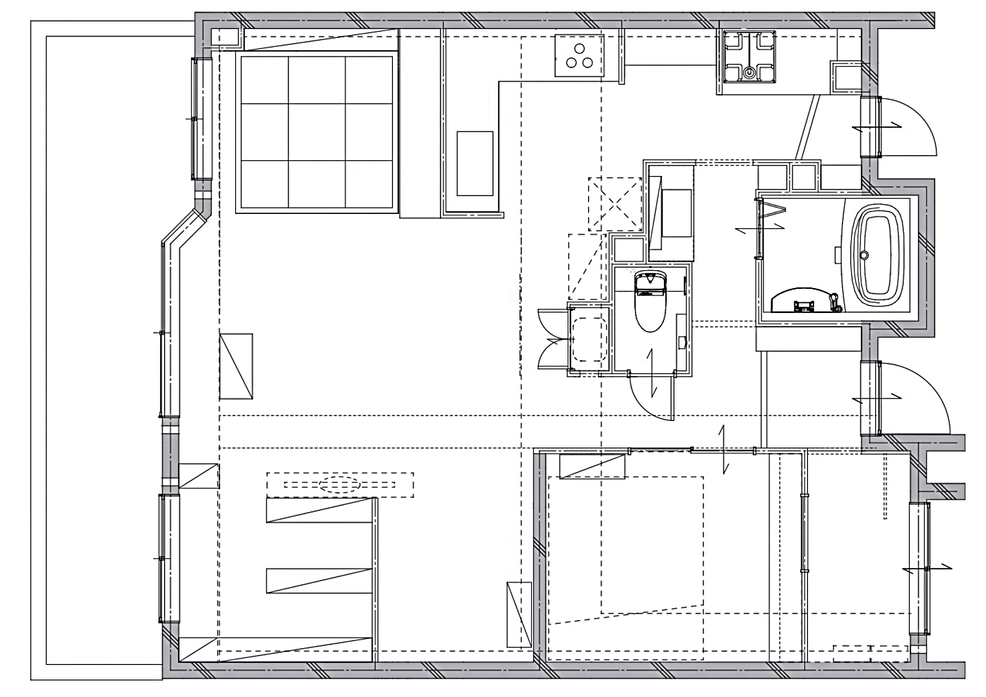
マンションのフルリノベーション事例です。マンションですが勝手口のあるユニークな物件。勝手口からキッチンへ直行できる便利さはそのまま、さらに洗面コーナー/ランドリー/キッチンと、表玄関からもぐるりと回遊できる動線にアップデートしました。
メイン空間はLDK・書斎・防音室が集約した多機能リビング。キッチンはI型からL型にレイアウトを変え、リビング側にカウンターをしつらえて、ダイニングを兼ねるスタイルに。ダイニングチェアは置かずに、小上がり畳を据えました。この小上がり、冬場は中央の畳を上げて掘り炬燵になるオリジナル仕様の造作品。周囲は収納空間になっており、季節もののリネン類などを収めています。
リビングから書斎の天井には、カウンターや棚と同じ樹種・同じ塗装の木材で、猫ちゃんのためのキャットウォークをしつらえました。書斎には、三列構成の本棚に蔵書がぎっしり。この造作本棚も、キャットウォークの一部として計画しています。書斎の窓辺にはベンチを造作し、ヌック(小さなくつろぎスペース)に。飼主さんと猫ちゃんと、一緒に日向ぼっこをするのにちょうどよい「おこもり感」ある小空間です。
書斎の隣の白い扉は、置き型のピアノ演奏用防音室。置き型防音室も近年はさまざまなサイズや楽器に対応した製品が発売されていますが、サイズが大きくなればなるほどスペースの確保が課題となります。本件では、リビングに面した本棚と、防音室を設置した際のラインをピッタリ揃えることで、圧迫感のない空間設計を実現しています。
性能面では、すべての窓に内窓を設置。南向きで窓の多い住戸は、陽当たりがよい反面、アルミ製のシングルサッシでは外気の影響を受けやすいというウィークポイントがあります。二重サッシとすることで、アルミサッシ物件でも、気密性を充分に高めることが可能です。

























